|
|
|
|
|
 |
|
ǰ ¸ñ
|
ÁÖ° 10K BALL ¹ëºê
|
|
Ä«Å×°í¸®
|
ÁÖ°
|
|
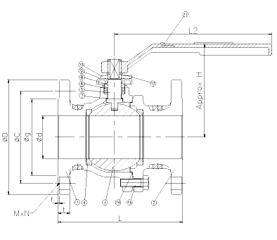
Size |
d |
Face to |
D1 |
END FLANGE |
H |
|
Face(L) |
OD(D) |
BOD(C) |
RF(g) |
Thick(t1) |
RF(f) |
n-h |
|
15 |
15 |
108 |
14 |
95 |
70 |
51 |
12 |
1 |
4-15 |
82 |
|
20 |
20 |
117 |
14 |
100 |
75 |
56 |
14 |
1 |
4-15 |
85 |
|
25 |
25 |
127 |
16 |
125 |
90 |
67 |
14 |
1 |
4-19 |
95 |
|
32 |
32 |
140 |
16 |
135 |
100 |
76 |
16 |
2 |
4-19 |
100 |
|
40 |
40 |
165 |
21 |
140 |
105 |
81 |
16 |
2 |
4-19 |
115 |
|
50 |
50 |
178 |
21 |
155 |
120 |
96 |
16 |
2 |
4-19 |
120 |
|
65 |
65 |
190 |
21 |
175 |
140 |
116 |
18 |
2 |
4-19 |
153 |
|
80 |
80 |
203 |
32 |
185 |
150 |
126 |
18 |
2 |
8-19 |
162 |
|
100 |
100 |
229 |
32 |
210 |
175 |
151 |
18 |
2 |
8-19 |
191 |
|
125 |
125 |
356 |
42 |
250 |
210 |
182 |
20 |
2 |
8-23 |
211 |
|
150 |
150 |
394 |
42 |
280 |
240 |
212 |
22 |
2 |
8-23 |
290 |
|
200 |
200 |
457 |
42 |
330 |
290 |
262 |
22 |
2 |
12-33 |
340 |
| PART NAME |
MATERIAL |
| BODY |
SCPH2 |
| CAP |
SCPH2 |
| BALL |
SCS 13 |
| SEAT RING |
PTFE |
| STEM |
SUS 304 |
| BACK PA'g |
PTFE |
| PACKING |
PTFE |
| RETAINER |
SUS 304 |
| GRAND |
SCPH2 |
| STOPPER |
SUS 304 |
| LEVER |
GCD 40 |
| SNAP RING |
SK 5M |
| GLAND BOLT |
SUS 304 |
| THRUST PAD |
PTFE |
| CAP BOLT |
SUS 304 |
|
 |
|
|
|
|
|
|
 |