|
|
|
|
|
 |
|
ǰ ¸ñ
|
ÁÖ° 20K BALL ¹ëºê
|
|
Ä«Å×°í¸®
|
ÁÖ°
|
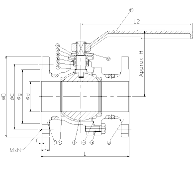
NO
|
PART NAME |
MATERIAL |
| 1 |
BODY |
SCPH 2 |
SSC 13/14 |
| 2 |
CAP |
SCPH 2 |
SSC 13/14 |
| 3 |
BALL |
SSC 13, STS 304 |
SSC 13/14 |
| 4 |
SEAT |
RTFE |
RTFE |
| 5 |
STEM |
STS 304, S45C |
STS 304/316 |
| 6 |
PACKING |
PTFE |
PTFE |
| 7 |
BACK SEAT |
PTFE |
PTFE |
| 8 |
GLAND |
SCPH 2,SSC 13 |
SCPH 2,SSC 13 |
| 9 |
STOPPER |
STS 304 |
STS 304 |
| 10 |
LEVER |
SCPH2+(CS+END) |
SCPH2+(CS+END) |
| 11 |
SNAP RING |
SK5M+ENP |
SK5M+ENP |
| 12 |
GLAND BOLT |
SCM 435 |
STS 304 |
| 13 |
GASKET |
PTFE |
PTFE |
| 14 |
HEX BOLT |
SCM 435 |
STS 304 |
| ¡¡ |
GEAR BOX UNIT |
HWA SUNG Stnadard(200A and larger) |
Features:
- Blow Out Proof Stem
- Locking Device
- Lower break-away torque
Applicable Standards:
- Face-to-face Dimensions:KS B2308
- End Flange Dimensions:KS B1511
- Shell wall thickness:KS B2308
- ISO 5211 Mounting Pad:50A and Lorger
- Gearbox operated type:200A and larger
|
| UNIT:mm |
|
Size
|
A |
B |
C |
D |
H |
L |
M |
n-h |
|
15A |
15 |
51 |
70 |
95 |
82 |
140 |
130 |
4-¨ª15 |
|
20A |
20 |
56 |
75 |
100 |
85 |
152 |
130 |
4-¨ª15 |
|
25A |
25 |
67 |
90 |
125 |
99 |
165 |
160 |
4-¨ª19 |
|
32A |
32 |
76 |
100 |
135 |
103 |
178 |
160 |
4-¨ª19 |
|
40A |
40 |
81 |
105 |
140 |
125 |
191 |
240 |
4-¨ª19 |
|
50A |
50 |
96 |
120 |
155 |
138 |
216 |
240 |
8-¨ª19 |
|
65A |
65 |
116 |
140 |
175 |
161 |
241 |
240 |
8-¨ª19 |
|
80A |
80 |
132 |
160 |
200 |
184 |
283 |
350 |
8-¨ª23 |
|
100A |
100 |
160 |
185 |
225 |
200 |
305 |
350 |
8-¨ª23 |
|
125A |
125 |
195 |
225 |
270 |
244 |
381 |
400 |
8-¨ª25 |
|
150A |
150 |
230 |
260 |
305 |
275 |
403 |
440 |
12-¨ª25 |
|
200A |
200 |
275 |
305 |
350 |
370 |
502 |
380 |
12-¨ª25 |
|
250A |
250 |
345 |
380 |
430 |
445 |
568 |
380 |
12-¨ª27 |
|
300A |
300 |
395 |
430 |
480 |
480 |
648 |
380 |
12-¨ª27 |
|
350A |
337 |
440 |
480 |
540 |
590 |
762 |
600 |
16-¨ª33 |
|
400A |
387 |
495 |
540 |
605 |
645 |
838 |
600 |
16-¨ª33 | | |
|
 |
|
|
|
|
|
|
|
|
|
 |